五大観光株式会社
お問い合わせ 03-5291-0555(受付時間 10:00-19:00)
Home
那須塩原リゾートタウン パルコ
土地建物温泉付物件
リゾート物件
中古・貸別荘物件
資料請求
8つの魅力
天然温泉「丹心の湯」
安心の管理体制
リゾートライフ体験記
建築実例紹介
パルコの花ごよみ
ペットと暮らす
周辺情報
交通・アクセス
Tweet
土地建物温泉付物件
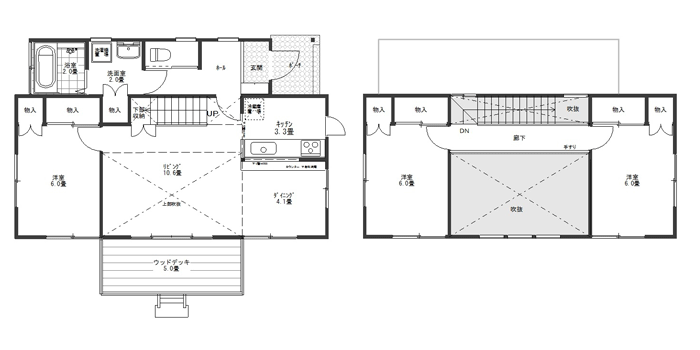
プランF
※上の画像をクリックすると拡大画像がご覧になれます。
販売価格(税込)
35,497,600円
温泉受湯権
別途販売(源泉57.6℃)
所在地
栃木県那須塩原市上横林字原山414
私道負担
なし
土地・地積
507㎡(153.36坪)
用途地域
無指定
建物・間取
木造2階建て・3LDK
建ぺい率
60%
完成
-
容積率
200%
面積
1F 59.62㎡(18.00坪)
2F 32.06㎡(9.68坪)
延床 91.68㎡(27.68坪)
法令上の制限
なし
設備
東京電力、公営水道、個別プロパン、個別浄化槽
権利
所有権
道路
幅員6m
取引態様
売主
Page Top